La Universidad Nacional de Itapúa (UNI), en su proyección de sostener la calidad, calidez, y brindar un espacio adecuado para el estudio y desarrollo de clases de los estud
iantes de la Facultad de Ciencias Agropecuarias y Forestales (FaCAF), lleva a cabo la ampliación del edificio de su sede ubicado en la localidad de General Artigas. Las obras iniciaron el lunes 14 de diciembre y se prevé su culminación para marzo del 2016.
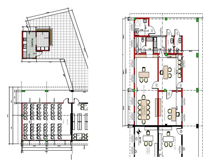
La ampliación inclusiva consiste en la construcción de aulas, sanitarios con rampas para discapacitados y oficinas, con una inversión de 253.51
6.550 guaraníes.
La obra fue adjudicada -mediante el llamado a licitación- al Ing. Rafael Ruíz López, bajo la fiscalización de la Dirección de Planificación de la Universidad.
Por otra parte, también se encuentra en pleno proceso de adjudicación para el completo reacondicionamiento de las instalaciones eléctricas y otras reparaciones de la referida sede.
La Universidad, es una institución que apuesta al desarrollo de profesionales proactivos que contribuyan con el desarrollo sostenible de la región y el país.
Fuente: Dirección de Comunicaciones (Dcom)








Los comentarios estan cerrados.